Einfamilienhaus
Adresse: Fürth
Bauherr: privat
Fertigstellung: 2024
Neubau eines Einfamilienwohnhauses
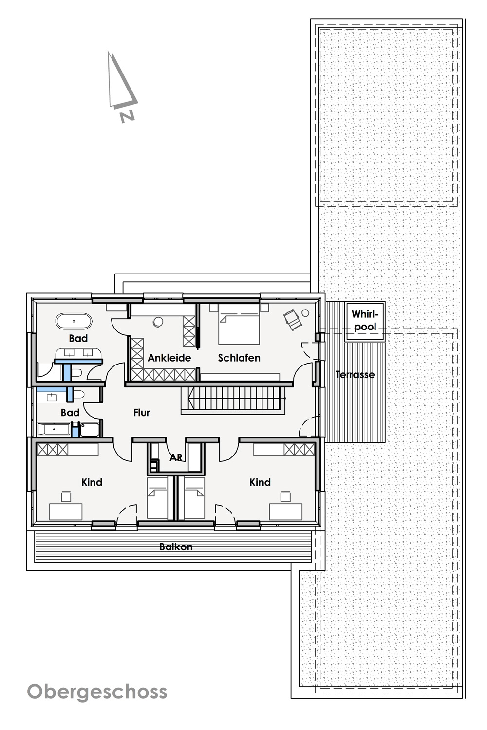
Obergeschoss
Schlaftrakt mit Ankleide
Kinderzimmer
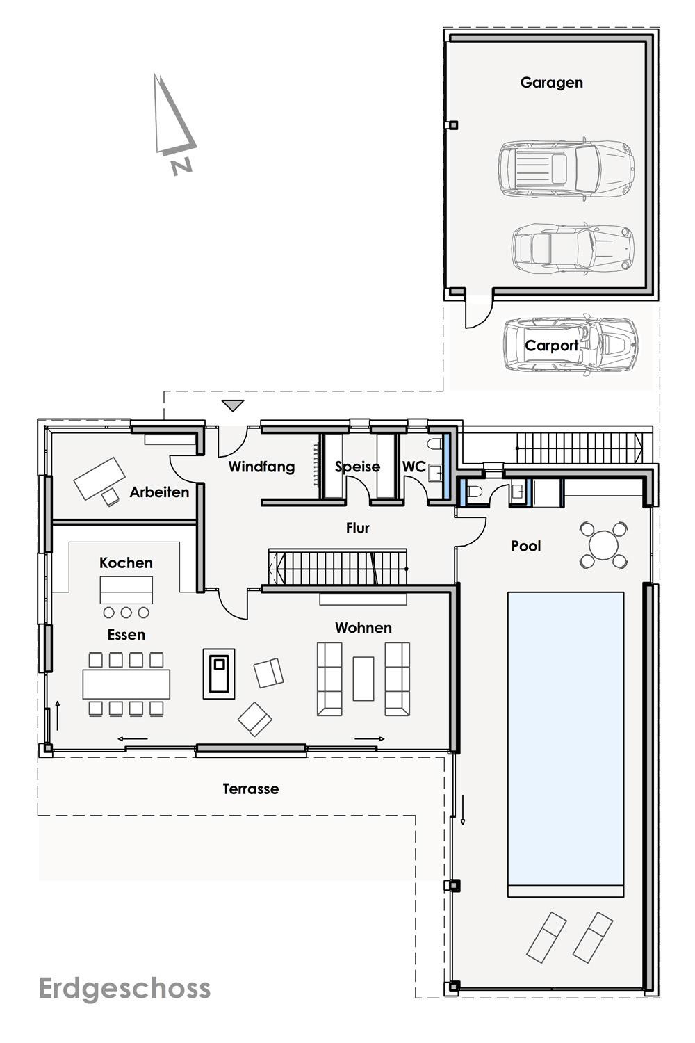
Erdgeschoss
offener Wohn-/Ess-/Kochbereich
Arbeitszimmer
Poolbereich
drei Garagen und Carport
Untergeschoss
Partykeller
Gästezimmer
Lager / Technik
Grundstück ca. 3420 m²
BGF ca. 740 m²
Gesamtnutzfläche ca. 570 m²
Wohnfläche ca. 470 m²



