
Einfamilienhaus
Adresse: Nürnberger Land
Bauherr: privat
Neubau eines Einfamilienwohnhauses in Hanglage
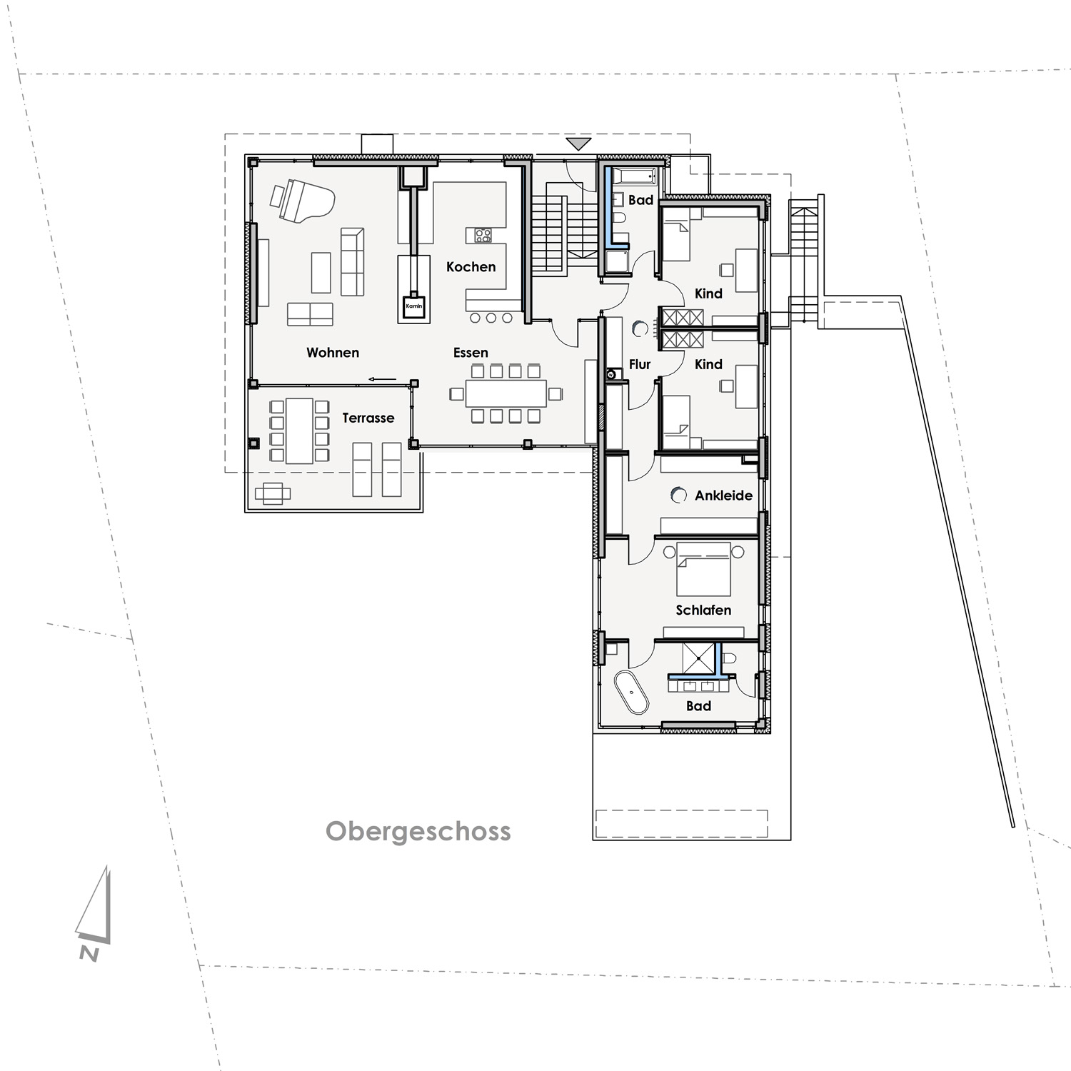
Obergeschoss
großzügiger Wohn-/Ess-/Kochbereich mit Terrasse
Schlaftrakt / Kinderzimmer
Erdgeschoss
Poolbereich mit Sauna und Dampfbad
Gäste- und Arbeitszimmer
drei Garagen und Carport
Untergeschoss
Heimkino
Lager / Technik
Grundstück ca. 1090 m²
BGF ca. 760 m²
Gesamtnutzfläche ca. 535 m²
Wohnfläche ca. 435 m²
in Planung



