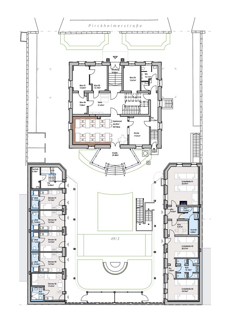
Domus Misericordiae
Adresse: Pirckheimerstraße 12, 90408 Nürnberg
Bauherr: Caritasverband Nürnberg
Fertigstellung: 2017
WE/Plätze: ~40
beauftragte Leistungsphasen: 1–9
Generalsanierung, Ausbau und Erweiterung der Villa inkl. Nebengebäude aus dem späten 19. Jahrhundert zur Einrichtung für ambulant Betreutes Wohnen für Männer.







